Q45F型三通手动球阀PN16~PN40
Q45F型三通手动球阀PN16~PN40有T形和L形。T形能使三条正交的管道相互联通和切断第三条通道,起分流、合流作用。L形只能连接相互正交的两条管道,不能同时保持第三条管道的相互连通,只起分配作用。
产品说明
Q45F型三通手动球阀PN16~PN40有T形和L形。T形能使三条正交的管道相互联通和切断第三条通道,起分流、合流作用。L形只能连接相互正交的两条管道,不能同时保持第三条管道的相互连通,只起分配作用。
产品特点
1、三通球阀在结构上采用一体化结构; 2、三通球芯分T形和L形,使用寿命长,流通能力大,阻力小; 3、球阀按作用式分单作用和双作用两种型式,单作用式的特点是一旦动力源发生故障时,球阀将处于控制系统要求的状态;4、面阀座的密封型式,法兰联接少,可靠性高,设计实现了轻量化;
性能参数
| 型号 | Q45F-16C | Q45F-25C | Q45F-40C | Q45F-16P | Q45F-25P | Q45F-40P | |
| 工作压力(℃) | 1.6 | 2.5 | 4.0 | 1.6 | 2.5 | 4.0 | |
| 适用温度(℃) | ≤150 | ||||||
| 适用介质 | 水、蒸汽、油品等 | 弱腐蚀性介质 | |||||
| 材料 | 阀体 | 碳素钢铸件 | 铬镍钛不锈钢铸件 | ||||
| 球体、阀杆 | 2Cr13 | 铬镍钛不锈钢 | |||||
| 密封圈 | 增强聚四氟乙烯 | ||||||
| 填料 | 聚四氟乙烯 | ||||||
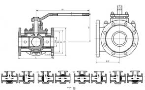
结构连接尺寸
Q45F型三通手动球阀PN16~PN40外形结构尺寸(mm)
| 公称通径 | 主要外形尺寸和连接尺寸 | |||||||
| L | D | D1 | D2 | b | Z-d | H | W | |
| 15 | 108 | 95 | 65 | 45 | 14 | 414 | 95 | 140 |
| 20 | 117 | 105 | 75 | 55 | 14 | 414 | 105 | 160 |
| 25 | 127 | 115 | 85 | 65 | 14 | 414 | 113 | 180 |
| 32 | 140 | 135 | 100 | 78 | 16 | 418 | 135 | 250 |
| 40 | 165 | 145 | 110 | 85 | 16 | 418 | 142 | 300 |
| 50 | 178 | 160 | 125 | 100 | 16 | 418 | 154 | 350 |
| 65 | 191 | 180 | 145 | 120 | 18 | 418 | 175 | 350 |
| 80 | 203 | 195 | 160 | 135 | 20 | 818 | 190 | 400 |
| 100 | 229 | 215 | 180 | 155 | 20 | 818 | 225 | 500 |
| 125 | 356 | 245 | 210 | 185 | 22 | 818 | 245 | 600 |
| 150 | 394 | 280 | 240 | 210 | 24 | 823 | 265 | 800 |
| 200 | 457 | 335 | 295 | 265 | 26 | 1223 | 305 | 800 |
| 250 | 533 | 405 | 355 | 320 | 30 | 1225 | 370 | 1300 |
尺寸图

安装注意事项
1.安装施工必须小心,切忌撞击阀门。
2.安装前,应将球阀作一检查,核对规格型号,鉴定有无损坏,尤其对于阀杆。还要转动几下,看是否歪斜,因为运输过程中,最易撞歪阀杆。还要清除阀内的杂物。
3.球阀起吊时,绳子不要系在手轮或阀杆上,以免损坏这些部件,应该系在阀体上。
4.对于球阀所连接的管路,一定要清扫干净。可用压缩空气吹去氧化铁屑、泥砂、焊渣和其他杂物。这些杂物,不但容易擦伤球阀的密封面,其中大颗粒杂物(如焊渣),还能堵死小阀门,使其失效。
5.安装时要留有阀柄旋转的位置。6.球阀不能用作节流。 7.带传动机构的球阀应直立安装。
|
||||||||||||||||||||||||
![]() |
||||||||||||||||||||||||
| ||||||||||||||||||||||||









